




插板閥(也稱滑板閥或閘門等)安裝于各種粉粒體物料料斗的出料口處或管道上起開通及關斷的作用,也可通過調整開度大小控制其物料的流量.本產品驅動裝置可采用電動,氣動,手動裝置.可安裝在干式除塵器,煙道等灰斗下部,工作溫度允許達200℃,這種裝置重量輕,體積小,
服務電話:13091153069(同微信)
插板閥(也稱滑板閥或閘門等)安裝于各種粉粒體物料料斗的出料口處或管道上起開通及關斷的作用,也可通過調整開度大小控制其物料的流量。本產品驅動裝置可采用電動、氣動、手動裝置。適用于冶金、化工、糧食行業,是一種理想的物料隔斷設備。我公司可生產進、出料口徑Φ100-600的插板閥,也可按用戶的要求進行非標尺寸閥門的設計制造。

此種插板閥是輸送飛灰和粉狀干物料的系統中用它截止輸送物的裝置,可安裝在火力發電廠的省煤器、空氣預熱器、干式除塵器、煙道等灰斗下部,也可與電動給料機配套使用,工作溫度允許達200℃,這種裝置重量輕、體積小、無飛灰外跑,我公司備有電動、氣動、手動三種,供您輸送系統的需要選用。我們熱忱歡迎您的到來。



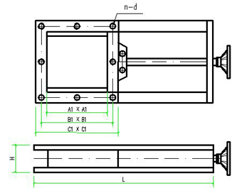
插板閥主要技術參數
|
類別(Sort)
|
A
|
B
|
C
|
A1×A1
|
B1×B1
|
C1×C1
|
H
|
H1
|
℃
|
L
|
N-φ
|
壓力(Pressure)
|
|
單向
(Mono-Directional) |
φ300
|
φ260
|
φ200
|
306×306
|
250×250
|
200×200
|
180
|
100
|
≤150
|
720
|
8-φ13
|
0.1
|
|
φ320
|
φ280
|
φ220
|
326×326
|
270×270
|
220×220
|
180
|
100
|
760
|
8-φ15
|
|||
|
φ340
|
φ300
|
φ240
|
346×346
|
290×290
|
240×240
|
180
|
100
|
800
|
8-φ15
|
|||
|
φ360
|
φ320
|
φ260
|
366×366
|
310×310
|
260×260
|
200
|
120
|
840
|
8-φ18
|
|||
|
φ380
|
φ340
|
φ280
|
386×386
|
330×330
|
280×280
|
200
|
120
|
880
|
8-φ18
|
|||
|
φ400
|
φ360
|
φ300
|
406×406
|
350×350
|
300×300
|
200
|
120
|
920
|
8-φ18
|
|||
|
φ420
|
φ380
|
φ320
|
426×426
|
370×370
|
320×320
|
200
|
120
|
960
|
8-φ18
|
|||
|
φ440
|
φ400
|
φ340
|
446×446
|
390×390
|
340×340
|
200
|
120
|
1000
|
8-φ18
|
|||
|
φ500
|
φ460
|
φ400
|
516×516
|
450×450
|
400×400
|
220
|
140
|
1120
|
8-φ18
|
|||
|
φ540
|
φ500
|
φ440
|
556×556
|
490×490
|
440×440
|
220
|
140
|
1200
|
8-φ18
|
|||
|
φ610
|
φ560
|
φ480
|
596×596
|
550×550
|
480×480
|
220
|
140
|
1295
|
16-φ18
|
|||
|
φ660
|
φ610
|
φ500
|
660×660
|
610×610
|
500×500
|
220
|
140
|
1350
|
16-φ18
|
|||
|
雙向
(Bi-Directional) |
φ706
|
φ660
|
φ600
|
706×706
|
660×660
|
600×600
|
240
|
160
|
1600
|
16-φ18
|
||
|
φ820
|
φ770
|
φ700
|
820×20
|
770×770
|
700×700
|
240
|
160
|
1800
|
20-φ18
|
|||
|
φ920
|
φ870
|
φ800
|
920×920
|
870×870
|
800×800
|
270
|
180
|
2000
|
20-φ18
|
|||
|
φ1030
|
φ975
|
φ900
|
1030×1030
|
975×975
|
900×900
|
270
|
180
|
2300
|
24-φ23
|
|||
|
φ1130
|
φ1074
|
φ1000
|
1130×1130
|
1074×1074
|
1000×1000
|
270
|
180
|
2550
|
24-φ23
|
|||
|
說明(Notes)Ⅰ-手輪 Ⅱ-鏈輪 距地面小于1.7米用手輪,大于1.7米用鏈輪
ⅠHand Wheel ⅡChain Wheel the hand wheel is used for less than 1.7m to the ground,and the chain wheel for above 1.7m |
||||||||||||